Belle maison situé à Morlanwelz avec 3 chambres et jardin Retour
ETUDE DES PROPRIETAIRES
Place Sabatier, 4 6031 Monceau-Sur-Sambre
071/904 866 info@immoproprio.be
Offre à partir de 259 000 €
Réf. : 7291474 - 7224468
Référence Agence : V7170-473
VISITE VIRTUELLE : https://immo360.immo-facile.com/vtour/fr/msegf9
Découvrez cette magnifique maison située dans la charmante ville de Morlanwelz, qui fera le bonheur de votre famille.
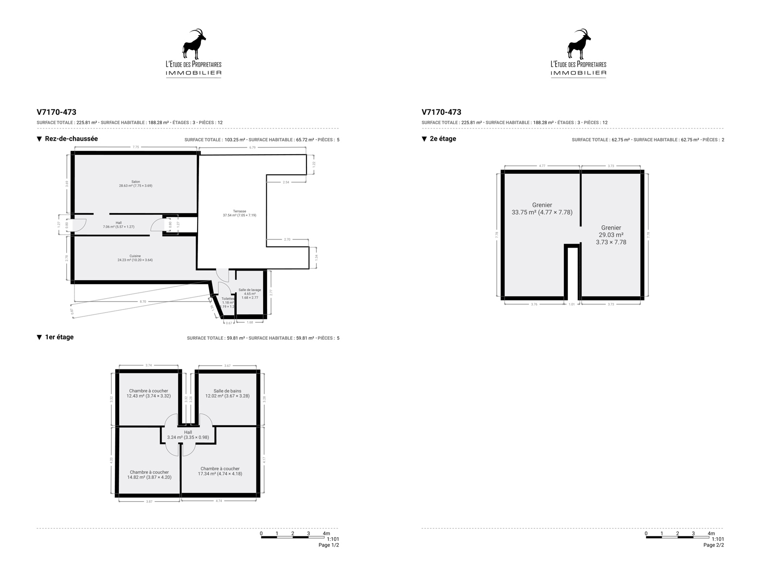
Au rez-de-chaussée, vous serez accueilli par un hall d'entrée desservant un spacieux living et une salle à manger lumineuse, une cuisine équipée et fonctionnelle, ainsi qu’un WC séparé et une buanderie.
Au premier étage, vous découvrirez trois chambres confortables et une salle d’eau comprenant une baignoire, une douche et un WC.
À l’extérieur, un grand jardin vous permettront de profiter pleinement de ce cadre paisible et verdoyant..
Confort de l’immeuble : châssis double vitrage, chauffage central, nouvelle toiture, cuisine équipée, proximité des commodités et des axes principaux.
Ne manquez pas cette opportunité unique !
Tous les documents liés à ce bien sont téléchargeables sur notre site internet : www.immoproprio.be
Faire offre à partir de 259.000€ (sous réserve d’acceptation des propriétaires).
Les surfaces habitables annoncées dans nos annonces sont les surfaces de plancher chauffé communiquées dans les PEB.
Descriptif à titre informatif et non contractuel, susceptible de modifications.
Le propriétaire, vendeur du bien, dispose de la faculté, de manière totalement libre et autonome, de vendre ou de ne pas vendre. S’il décide de vendre, il n’est nullement tenu de retenir l’offre la plus élevée mais choisit celle qui lui convient le mieux au regard de ses propres critères (montant de l’offre, conditions suspensives, délai de signature, etc.).
| Prix | Offre à partir de 259 000 € |
| Type de bien | Maison |
| Superficie | 175.00 m² |
| Commune | 7140 MORLANWELZ |
| Disponibilité | en fonct. du propriétaire |
| N° certificat PEB | 20251027035332 |
| PEB | ![]() |
| PEB Total | 40247 kWh/an |
| E spéc. | 230.00 kWh/m².an |
| Certificat électrique | oui, conforme |
| Façades : | 2 |
| Etat du bien : | bon |
| Chambre : | 3 chambres |
| Salle de bain : | 1 |
| Salle de douche : | 1 |
| Garage : | non communiqué |
| Double Vitrage : | non communiqué |
| Superficie habitable : | non communiqué |
| Superficie terrain : | non communiqué |
| Proximité Grands axes : | non communiqué |
| Proximité Aéroport : | non communiqué |
| Proximité Transports en commun : | non communiqué |
| Proximité Gare : | non communiqué |
| Proximité Magasin : | non communiqué |
| Proximité Autoroute : | non communiqué |
Situation géographique : Rue du Onze Novembre 2 - 7140 MORLANWELZ
Le positionnement est donné à titre indicatif et n'est absolument pas garanti