Immeuble de 3 lots loué à vendre sur MANAGE Retour
ETUDE DES PROPRIETAIRES
Place Sabatier, 4 6031 Monceau-Sur-Sambre
071/904 866 info@immoproprio.be
Offre à partir de 299 000 €
Réf. : 7291299 - 7237857
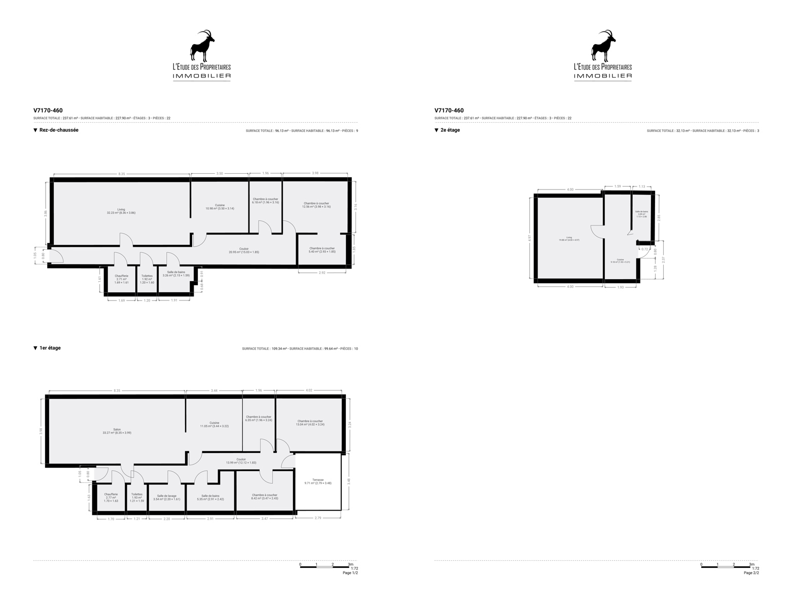
Référence Agence: V7170-460
Visite virtuelle : https://immo360.immo-facile.com/vtour/fr/irao5z
IMMEUBLE DE RAPPORT à vendre sur la commune de MANAGE comprenant 3 logements.
Au rez-de-chaussée vous trouverez un appartement comprenant : un hall d'entrée, un living , une cuisine, une salle de bain , une chambre avec dressing de +/- 18m² , une buanderie et un wc.
Au premier étage, vous trouverez un appartement comprenant : un hall d'entrée, un living , une cuisine, un bureau, une chambre de +/- 8² , une chambre de +/- 13m² , une buanderie, une salle de bain, un wc séparé et une terrasse
Au deuxième étage, vous trouverez un studio comprenant : un salon, une cuisine, une salle de bain
Le revenu locative total est de 1970€ dont les loyers sont respectivement : 700€ + 800€ + 470€
Les charges : 30€ de charges par appartement pour l'eau
A visiter sans tarder !
Confort de l'immeuble : béton entre les étages, compteurs séparés, chauffage central,
Tous les documents liés à ce bien sont téléchargeables sur notre site internet www.immoproprio.be
Faire offre à partir de 299.000€ (sous réserve d'acceptation des propriétaires).
Les surfaces habitables annoncés sont les surfaces de plancher chauffé communiquées dans les PEB.
Descriptif à titre informatif et non contractuel, il est susceptible de modification.
Le propriétaire, vendeur du bien, dispose de la faculté, de manière totalement libre et autonome, de vendre ou de ne pas vendre. S'il décide de vendre, il est nullement tenu de retenir l'offre la plus élevée mais choisit celle qui lui convient le mieux au regard de ses propres critères (montant de l'offre, conditions suspensive, délai de signature, etc.)
| Prix | Offre à partir de 299 000 € |
| Type de bien | Maison |
| Superficie | 266.00 m² |
| Commune | 7170 MANAGE |
| Disponibilité | en fonct. du locataire |
| N° certificat PEB | 20250831006523 |
| PEB | ![]() |
| PEB Total | 29780 kWh/an |
| E spéc. | 253.00 kWh/m².an |
| Certificat électrique | non |
| Façades : | 3 |
| Etat du bien : | bon |
| Chambre : | 3 chambres |
| Salle de bain : | 2 |
| Salle de douche : | 2 |
| Garage : | non communiqué |
| Double Vitrage : | non communiqué |
| Superficie habitable : | non communiqué |
| Superficie terrain : | non communiqué |
| Proximité Grands axes : | non communiqué |
| Proximité Aéroport : | non communiqué |
| Proximité Transports en commun : | non communiqué |
| Proximité Gare : | non communiqué |
| Proximité Magasin : | non communiqué |
| Proximité Autoroute : | non communiqué |
Situation géographique : Rue de Longsart 14 - 7170 MANAGE
Le positionnement est donné à titre indicatif et n'est absolument pas garanti