Surface commerciale emblématique au cœur de Charleroi ! Retour
ESPACE IMMO
Place de la Digue 6000 Charleroi
071 / 30 33 51 info@espaceimmobilier.be
4 500 euros
Réf. : 7238180 - 7237326
À LOUER – Surface commerciale emblématique au cœur de Charleroi !
Découvrez l’une des adresses commerciales les plus connues de Charleroi, bénéficiant d’une visibilité exceptionnelle et d’un emplacement stratégique en plein centre-ville.
Ce rez-de-chaussée développe une surface utile d’environ 240 m², à laquelle s’ajoute un vaste sous-sol de ± 240 m², idéal pour le stockage ou un espace d’exploitation complémentaire.
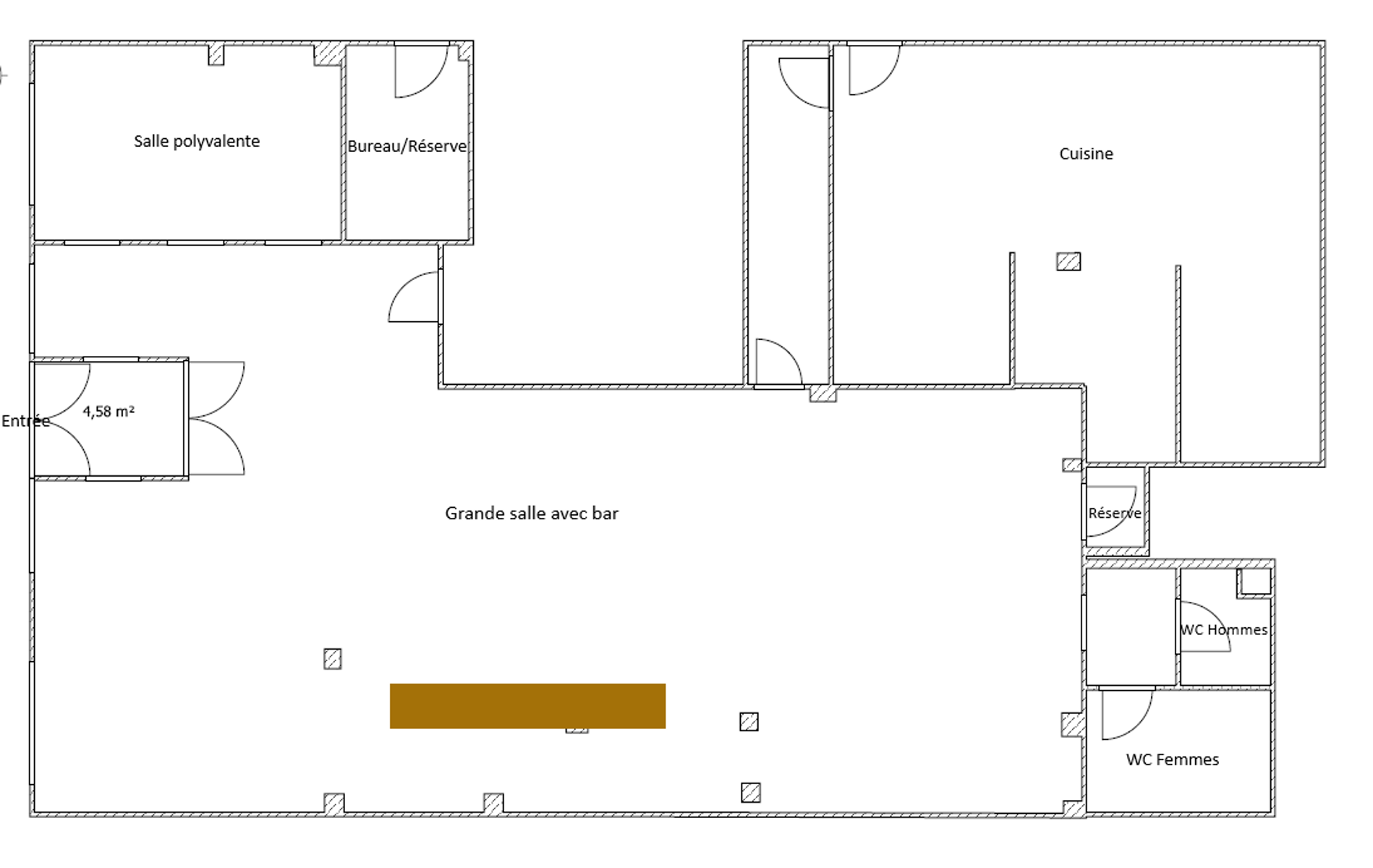
Composition :
1) Rez-de-chaussée :
- Sas d’entrée de ± 4,5 m²
- Grande surface commerciale de ± 140 m² comprenant un bar
- Espace cuisine de ± 50 m², pouvant facilement être rouvert sur la surface principale pour agrandir la zone d’exploitation
- Local réserve
- Sanitaires complets :
Dames : 3 toilettes et 2 lavabos
Hommes : 2 urinoirs et 2 lavabos
2) Sous-sol :
- Ensemble de caves totalisant ± 240 m²
Caractéristiques techniques :
- Châssis aluminium triple vitrage
- Chauffage central au gaz
- Revenu cadastral non indexé : 2.773 €
- Frais annuels de copropriété (2024) : 3.487,46 €, soit environ 290,62 €/mois
Conditions de location :
- Loyer de base : 4.500 €/mois
- Les conditions de location (précompte immobilier, garantie locative, durée du bail, etc.) seront à discuter entre parties.
Une opportunité rare dans le centre de Charleroi, idéale pour une activité Horeca, commerce de détail, showroom ou espace événementiel.
Les superficies sont mentionnées à titre indicatif.
Publicité à caractère non contractuel.
| Loyer | 4 500 euros |
| Type de bien | Esp. commercial |
| Superficie | 240.00 m² |
| Commune | 6000 Charleroi |
| Disponibilité | à l'acte |
| N° certificat PEB | non communiqué |
| PEB | ![]() |
| PEB Total | non communiqué |
| E spéc. | non communiqué |
| Façades : | 3 |
| Etat du bien : | très bon |
| Chambre : | non communiqué |
| Salle de bain : | non communiqué |
| Salle de douche : | non communiqué |
| Garage : | non communiqué |
| Double Vitrage : | non communiqué |
| Superficie habitable : | non communiqué |
| Superficie terrain : | 300 m² |
| Proximité Grands axes : | non communiqué |
| Proximité Aéroport : | non communiqué |
| Proximité Transports en commun : | non communiqué |
| Proximité Gare : | non communiqué |
| Proximité Magasin : | non communiqué |
| Proximité Autoroute : | non communiqué |
Situation géographique : Place de la Digue 17 - 6000 Charleroi
Le positionnement est donné à titre indicatif et n'est absolument pas garanti