Immeuble comprenant 2 appartements, un entrepôt avec bureau et garage. Retour
BUREAU SAVINI
Rue de Beaumont, 53 6030 Marchienne-au-pont
071/53 57 96 info@bureausavini.be
469 000 euros
Réf. : 7234547 - 7234529
Rosée - Immeuble comprenant 2 appartements, un entrepôt avec bureau et garage.
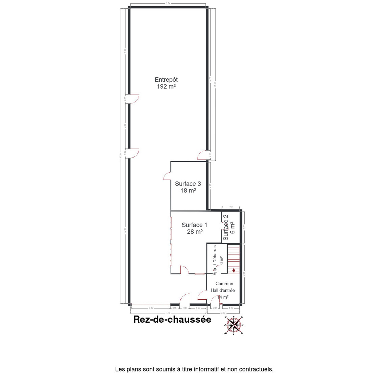
Rez-de-chaussée : Entrepôt : 230 m² Bureau : 36 m² Garage : 42 m².
1er Étage (Appartement de +/- 100 m²) : Cuisine équipée et séjour(45 m2), Salle de bain(6,4m2), 3 chambres(11, 12 et 12 m2), Chaufferie, WC indépendant.
Actuellement occupé par le propriétaire.
2ème Étage (Appartement de +/- 150 m²) : Living spacieux avec cuisine équipée(69m2), Salle de bain, 3 chambres(15,14 et 13m2), Dressing(11m2), Chaufferie, Buanderie,WC indépendant.
Actuellement loué à 850 €/mois
Revenus Locatifs Potentiels : Entrepôt : 1.000 €/mois 1er Appartement : 750 €/mois 2ème Appartement : 800 €/mois.
Divers : 2 entrées distinctes, Électricité conforme, Compteur individuel pour l'électricité, 1 compteur d'eau et 2 décompteurs, Chauffage central au mazout, Châssis PVC double vitrage.
PEB D 281 kWh/m2.an
20250122034077
RC : Maison 1790€ et entrepôt 236€.
Son prix 469.000 € sous réserve d'acceptation des propriétaires.
Bureau Savini 071/535.796
www.bureausavini.be
| Prix | 469 000 euros |
| Type de bien | Bien de rapport |
| N° certificat PEB | 202501220345077 |
| PEB | ![]() |
| PEB Total | 58568 kWh/an |
| E spéc. | 281.00 kWh/m².an |
| Façades : | 2 |
| Etat du bien : | bon |
| Chambre : | 7 chambres |
| Salle de bain : | non communiqué |
| Salle de douche : | non communiqué |
| Garage : | non communiqué |
| Double Vitrage : | non communiqué |
| Superficie habitable : | non communiqué |
| Superficie terrain : | non communiqué |
| Proximité Grands axes : | non communiqué |
| Proximité Aéroport : | non communiqué |
| Proximité Transports en commun : | non communiqué |
| Proximité Gare : | non communiqué |
| Proximité Magasin : | non communiqué |
| Proximité Autoroute : | non communiqué |
Situation géographique : Rue aux Foires 127 - 5620 ROSEE
Le positionnement est donné à titre indicatif et n'est absolument pas garanti