Immeuble avec rez-de-chaussée commercial et appartement 3 CH

ALEX INVEST
Chaussée Paul Houtart 232 7110 Houdeng-Goegnies
064/70.01.45 0488/32.79.79 info@alexinvest.be

Offre à partir de 369 000 €

Réf. : 7297192 - 7189926  
Idéalement situé à proximité immédiate de la place de Goegnies, nous vous présentons cet immeuble offrant un excellent potentiel, tant pour une activité commerciale que pour une occupation résidentielle.
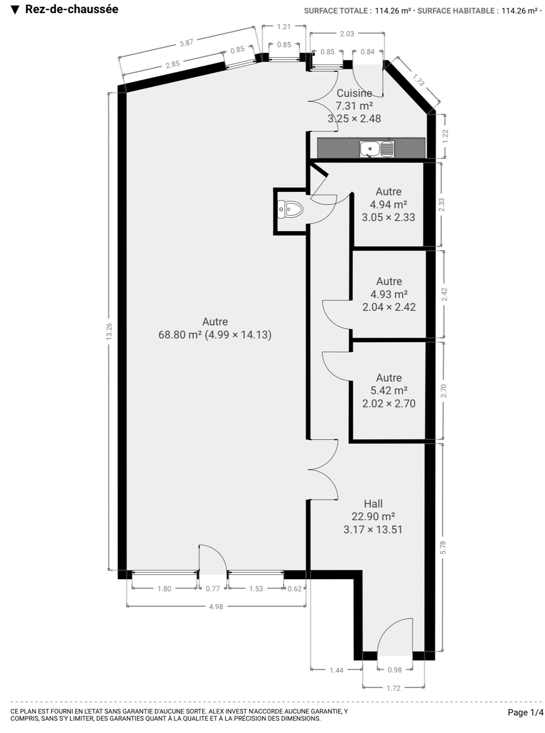
=> Rez-de-chaussée de +/- 115m2 : celui-ci accueille un magnifique espace commercial bénéficiant d’une excellente visibilité. Il s’ouvre sur une grande TERRASSE et un agréable JARDIN, parfaits pour diverses activités. Vous y trouverez également une cuisine, un hall avec espace de rangement, trois pièces actuellement utilisées pour un banc solaire, ainsi qu’un WC séparé. Ce niveau dispose de deux entrées distinctes, permettant la création de deux commerces indépendants si souhaité.
=> Appartement (entrée séparée) : À l’étage, un vaste hall d’entrée avec WC séparé, une spacieuse pièce de vie de ±53 m², dotée d’une cuisine ouverte entièrement équipée avec îlot central. Cette pièce donne accès à une magnifique TERRASSE, idéale pour profiter de moments de détente.
=> 2ème étage : Un hall de nuit dessert trois chambres de 8, 14 et 19 m², ainsi qu’une salle de bain complète avec baignoire, douche, double vasque et WC.
=> Caves au sous-sol
Compteurs séparés pour les deux unités, Chauffage au sol, ELECTRICITE CONFORME pour l’ensemble de l’immeuble.
Faire offre à partir de 369.000 €, sous réserve de l’acceptation des propriétaires. Possibilité d’acquérir le matériel professionnel, moyennant négociation.
Ce bien représente une opportunité rare pour investisseurs ou indépendants souhaitant concilier activité professionnelle et habitation.
À visiter sans tarder !

Intéressé ? Contactez-nous Partagez ce bien avec vos amis

Prix Offre à partir de 369 000 €
Type de bien Bien de rapport
Superficie 145.00 m²
Commune 7110 La Louvière Houdeng-Goegnies
Disponibilité à l'acte
N° certificat PEB 20251017008415
PEB
PEB Total 35373 kWh/an
E spéc. 244.00 kWh/m².an
Certificat électrique oui, conforme
Façades :2
Etat du bien : bon
Chambre : 3 chambres
Salle de bain : 1
Salle de douche : non communiqué
Garage : non communiqué
Double Vitrage : Oui
Superficie habitable : non communiqué
Superficie terrain : 435 m²
Proximité Grands axes : non communiqué
Proximité Aéroport : non communiqué
Proximité Transports en commun : non communiqué
Proximité Gare : non communiqué
Proximité Magasin : non communiqué
Proximité Autoroute : non communiqué

     Situation géographique : Rue Léon Duray 41 - 7110 La Louvière Houdeng-Goegnies


     Le positionnement est donné à titre indicatif et n'est absolument pas garanti