Immeuble 2 appartements + 3 garages Retour
AVENIR IMMOBILIER
Avenue Paul Pastur, 381/1 6032 Mont-sur-Marchienne
071 22 11 41 0475/52.26.31 info@avenir-immobilier.be
Offre à partir de 249 000 €
Réf. : 7298480 - 7284459
✨ L’Avenir Immobilier vous présente cet immeuble idéalement situé à Antoing, composé de deux appartements, offrant de beaux volumes, plusieurs garages privatifs et une configuration parfaite pour un investissement résidentiel de qualité.
✅ Au rez-de-chaussée :
🔹 Garage App 1 de 21 m²
🔹 Garage central de 20 m²
🔹 Garage App 2 de 17 m²
🔹 Hall d’accès aux étages
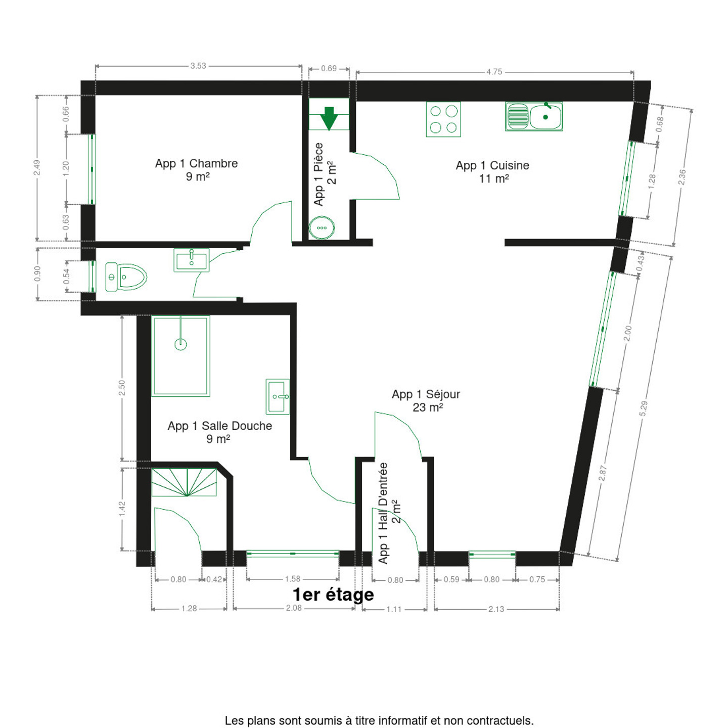
✅ 1er étage – Appartement 1 :
🔹 Hall d’entrée de 2 m²
🔹 Séjour lumineux de 23 m², offrant un bel espace de vie
🔹 Cuisine de 11 m², fonctionnelle et agréable
🔹 Chambre de 9 m²
🔹 Salle de douche de 9 m², spacieuse et bien agencée
🔹 Petite pièce de rangement / buanderie de 2 m²
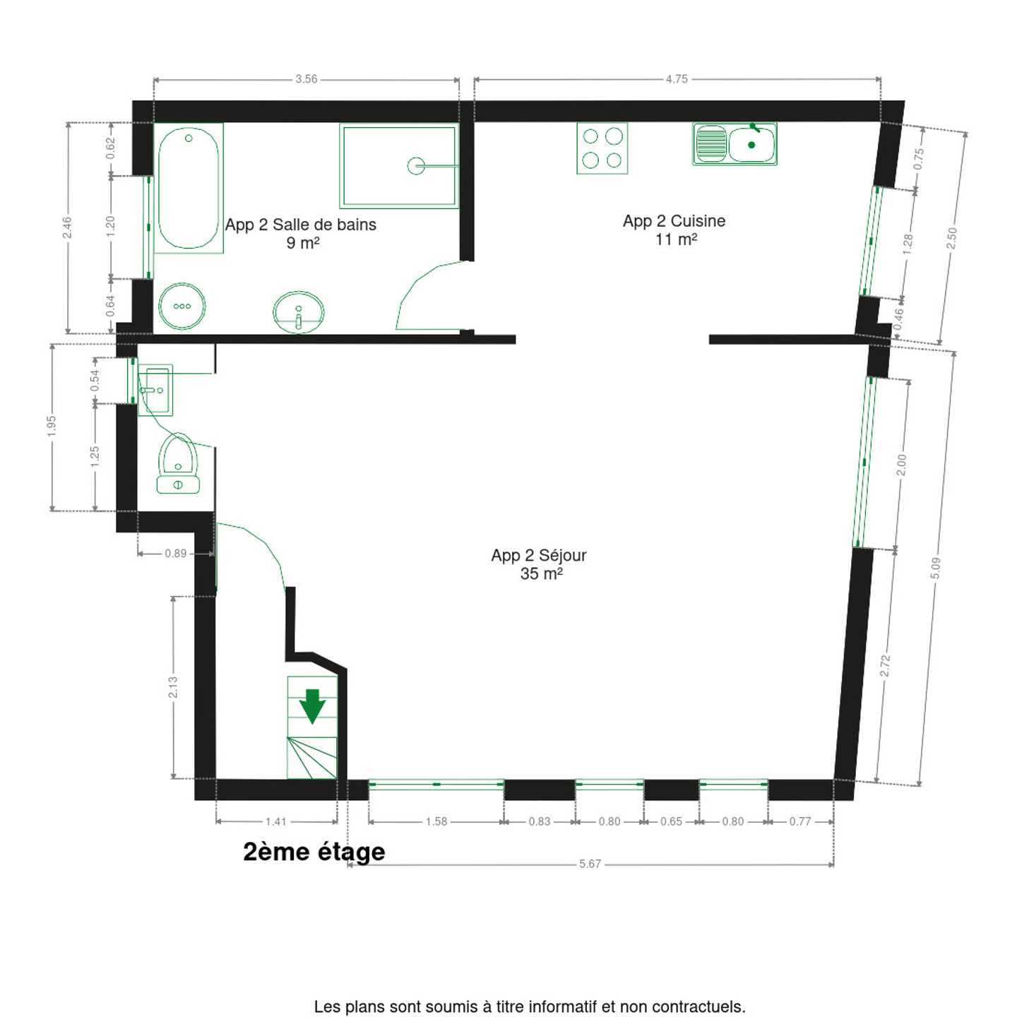
✅ 2ᵉ et 3ᵉ étage – Appartement 2
🔹 Séjour généreux de 35 m², idéal pour une grande pièce de vie ouverte
🔹 Cuisine de 11 m², attenante et facilement aménageable
🔹 Salle de bains de 9 m² avec baignoire
🔹 WC séparé
🔹 Chambre 1 de 20 m²
🔹 Chambre 2 de 10 m²
🔹 Dressing confortable de 7 m²
⭐️ Atouts majeurs :
🔹 Deux appartements lumineux et bien agencés
🔹 De très beaux volumes sur chaque niveau
🔹 Trois garages privatifs
🔹 Chaque appartement dispose de son propre garage, et le troisième garage est loué à un tiers
🔹 Un espace nuit entièrement dédié à l’appartement 2
🔹 Idéal pour un investisseur ou pour occupation personnelle + mise en location
🔹 Situation pratique, proche des commodités
⚡Les deux appartements sont actuellement loués
Ce bien conviendra parfaitement à un investisseur, à une famille souhaitant occuper un appartement tout en louant l’autre, ou à toute personne recherchant un immeuble offrant de multiples possibilités d’aménagement et de stabilité locative.
☎️ Intéressé(e)? 071/22.11.41 ou www.avenir-immobilier.be
Toutes les photos et les documents sont disponibles sur notre site web.
⚠️️ L'agent n'a aucun pouvoir de décision quant aux offres reçues. ⚠️️
| Prix | Offre à partir de 249 000 € |
| Type de bien | Bien de rapport |
| Superficie | 175.00 m² |
| Commune | 7642 Calonne |
| Disponibilité | en fonct. du locataire |
| N° certificat PEB | 20240428006361 |
| PEB | ![]() |
| PEB Total | 30185 kWh/an |
| E spéc. | 223.00 kWh/m².an |
| Façades : | 3 |
| Etat du bien : | bon |
| Chambre : | 3 chambres |
| Salle de bain : | 2 |
| Salle de douche : | non communiqué |
| Garage : | non communiqué |
| Double Vitrage : | non communiqué |
| Superficie habitable : | non communiqué |
| Superficie terrain : | 97 m² |
| Proximité Grands axes : | non communiqué |
| Proximité Aéroport : | non communiqué |
| Proximité Transports en commun : | non communiqué |
| Proximité Gare : | non communiqué |
| Proximité Magasin : | non communiqué |
| Proximité Autoroute : | non communiqué |
Situation géographique : Rue Albert 1er 10 et - 7642 Calonne
Le positionnement est donné à titre indicatif et n'est absolument pas garanti